3,5 Zi.-Wohnung in schöner Lage von Ratingen-Ost!
-
Diese großzügige 3-Zimmer-Wohnung befindet sich in einem gepflegten 6-Parteien-Haus in ruhiger Lage von Ratingen-Ost, in der Nähe des Stadtzentrums.
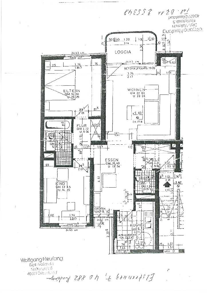
Über ca. 82 m² verteilt, befinden sich zwei potentielle Schlafzimmer, ein geräumiges Wohnzimmer mit Zugang zum Sonnenbalkon, ein Essbereich, eine Küche mit Einbauküche sowie das Badezimmer mit Badewanne und separater Dusche.
Der Balkon lässt Sie schöne Sonnenstunden an der frischen Luft verbringen.
Ein eigener Kellerraum vervollständigt das Angebot.
Kostenaufstellung: 790 EUR Kaltmiete zzgl. 200 EUR NK = 990 EUR Gesamtmiete
Energieausweis: Bedarfsausweis gültig von: 17.01.2019, Endenergiebedarf Wärme: 132 kWh(m²a), Energieeffizienzklasse: E, Baujahr: 1987
Sagt Ihnen das Angebot zu und Sie haben sich mit der Lage beschäftigt?
BITTE LESEN:
– Eine Mindestmietlaufzeit von 2 Jahren wird vorausgesetzt
– Der Einzug ist mit maximal 3 Personen möglich
– Ein eigenes, solides Einkommen ist Voraussetzung -
Flächen
- Wohnfläche: 82 m²
- Wohneinheiten: 6
- Zimmer insgesamt: 3
- Schlafzimmer: 2
- Badezimmer: 1
- Etagen: 2
- Etage: 2
- Balkone: 1
Zustand & Erschließung
- Baujahr: 1972
- Zustand: gepflegt
- Keller: voll unterkellert
Sonstiges
- Immobilie ist verfügbar ab: 01.03.2026
-
Hier einige Ausstattungsmerkmale aufgeführt:
– EBK
– Bad mit Wanne und Dusche
– Holzboden
– Kellerraum
– 2 Schlafzimmer
– Balkon
– Markise
– Wände weiß gestrichen- Art der Ausstattung: Standard
- Heizungsart: Zentralheizung
- Befeuerung: Gas
- Küche: Einbauküche
-
- Energieausweis-Art: Bedarf
- Energieausweis gültig bis: 16.01.2029
- Endenergiebedarf: 132 kWh/(m²*a)
- Energieeffizienzklasse: E
- Baujahr (Energieausweis): 1987
- Energieausweis-Ausstellungsdatum: 17.01.2019
- Energieausweis-Jahrgang: ab Mai 2014
- Energieausweis-Gebäudeart: Wohngebäude
- Primärenergieträger: Gas
-
Sehr gute Wohnlage in Ratingen-Ost. Die Anliegerstraße befindet sich in grünem Umfeld und ist geprägt durch eine aufgelockerte Wohnbebauung. Einkaufsmöglichkeiten befinden sich in der Nähe. Der historische Stadtkern von Ratingen sowie ein Kindergarten und eine Grundschule sind zu Fuß erreichbar. Die Naherholungsgebiete Blauer See sowie die Auermühle mit Restaurant/Biergarten im reizvollen Angertal liegen ebenfalls in fußläufiger Entfernung. Die Umgebung bietet sehr viele Wanderwege und Erholungsmöglichkeiten. Zum S-Bahn Anschluss nach Essen, Düsseldorf und Köln benötigt man ca. 10 Minuten zu Fuß. Optimale Verkehrsanbindung an die Autobahnen A3 Köln-Oberhausen, die A44 Ratingen-Mönchengladbach und die Autobahn A52 Essen-Düsseldorf / Roermond (NL), an den Flughafen und in das Ruhrgebiet.
Ratingen – die größte Stadt im Kreis Mettmann – ist durch ihre günstige Lage zwischen den Großstädten Essen und Düsseldorf, der hervorragenden Verkehrsanbindungen, der Nähe zum Flughafen Düsseldorf und der ausgeprägten Infrastruktur, ein attraktiver Wohn- und Gewerbestandort. Sämtliche Schulformen, Kindergärten, Tagesstätten etc. sind in Ratingen vorhanden. Düsseldorf – die Landeshauptstadt von NRW – grenzt direkt an Ratingen. Die verknüpfen sich im Raum Ratingen zu einem Dreieck. Das mittelalterliche Stadtzentrum, der Marktplatz mit denkmalgeschützten Gebäuden, die Stadtmauer, die Stadttore, die Wasserburg, das Schloss Linnep, das Schloss Landsberg und die erste mechanische Baumwollspinnerei Cromford, dokumentieren die historische Kultur und sind attraktive Sehenswürdigkeiten. Das Kultur- und Freizeitangebot mit Museen, Veranstaltungen in der Stadthalle, im Stadttheater, auf der Freilichtbühne Blauer See und am Grünen See ist äußerst vielfältig. Zahlreiche Sportangebote bieten Vereine, Sportplätze, Eislaufhalle, Hallen- und Freibad. Die umfangreichen Wälder und Seen sind die grüne Lunge, der ruhende Pol und beliebtes Naherholungsgebiet der Ratinger Bevölkerung. -
- Kaltmiete: 790 €
- monatl. Betriebs-/Nebenkosten: 200 €
- Kaution: 1.785 €


















