Wohnimmobilie > Mehrfamilienhaus
Zu Verkaufen

Attraktives Mehrfamilienhaus in Jülich mit 6 Einheiten, 17 Zimmern, starke Rendite & Ausbaupotenzial

52428 Jülich
859.000 €

20049-3704
1960
446 m²
242 m²
17
  • Zum Verkauf steht ein attraktives Mehrfamilienhaus in Jülich, ideal für Kapitalanleger, die Wert auf stabile Mieteinnahmen und Entwicklungspotenzial legen. Das 1960 erbaute Objekt verfügt über eine Gesamtwohnfläche von ca. 446 m² auf drei Ebenen und beherbergt aktuell sechs voll vermietete Wohneinheiten mit insgesamt 17 Zimmern. Die Jahresnettokaltmiete beträgt ca. 48.022 €, was einer Rendite von rund 5,6 % entspricht.

    Das Gebäude bietet zahlreiche Vorteile für Investoren: Jede Wohneinheit verfügt über ein eigenes Kellerabteil, neue Etagenheizungen (2023–2024) sorgen für modernen Wohnkomfort, und das Haus ist vollständig unterkellert. Besonders interessant ist das Erweiterungspotenzial im Dachgeschoss, wo die Realisierung von zwei zusätzlichen Wohneinheiten möglich ist – ideal, um die Ertragskraft noch weiter zu steigern.

    Die Lage in Jülich überzeugt durch eine hohe Vermietungssicherheit: In direkter Nähe zum renommierten Forschungszentrum Jülich ist eine konstante Nachfrage nach Wohnraum gesichert. Kurze Wege zu Schulen, Einkaufsmöglichkeiten und Ärzten sowie eine hervorragende Anbindung an Köln, Düsseldorf und Aachen runden das attraktive Standortprofil ab.

    Für Investoren bietet diese Immobilie eine ideale Kombination aus laufenden Mieteinnahmen, langfristiger Wertsteigerung und zusätzlichem Ausbaupotenzial in einer wirtschaftlich starken Region.
  • Flächen

    • Wohnfläche: 446 m²
    • Grundstücksfläche: 242 m²
    • Zimmer insgesamt: 17
    • Schlafzimmer: 11
    • Badezimmer: 6

    Zustand & Erschließung

    • Baujahr: 1960
    • Zustand: gepflegt
    • Keller: voll unterkellert
  • Gesamtwohnfläche: ca. 446 m² auf 3 Ebenen
    Grundstücksgröße: ca. 242 m²
    Baujahr: 1960
    Einheiten: 6 Wohneinheiten, voll vermietet
    Mieteinnahmen p.a.: ca. 48.022 €
    Rendite: ca. 5,6 %
    Erweiterungspotenzial: Dachgeschossausbau möglich (2 weitere Wohneinheiten realisierbar)

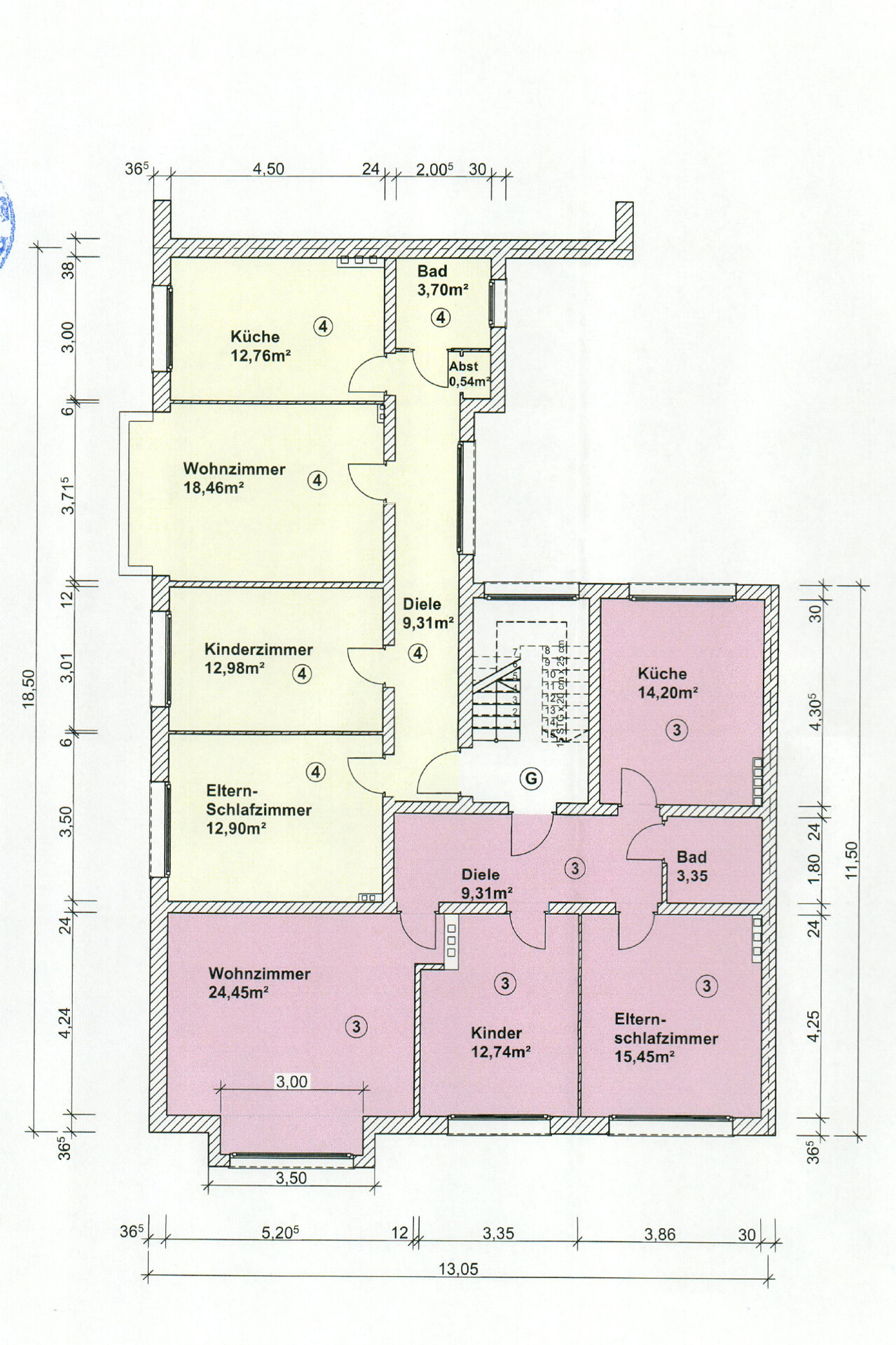
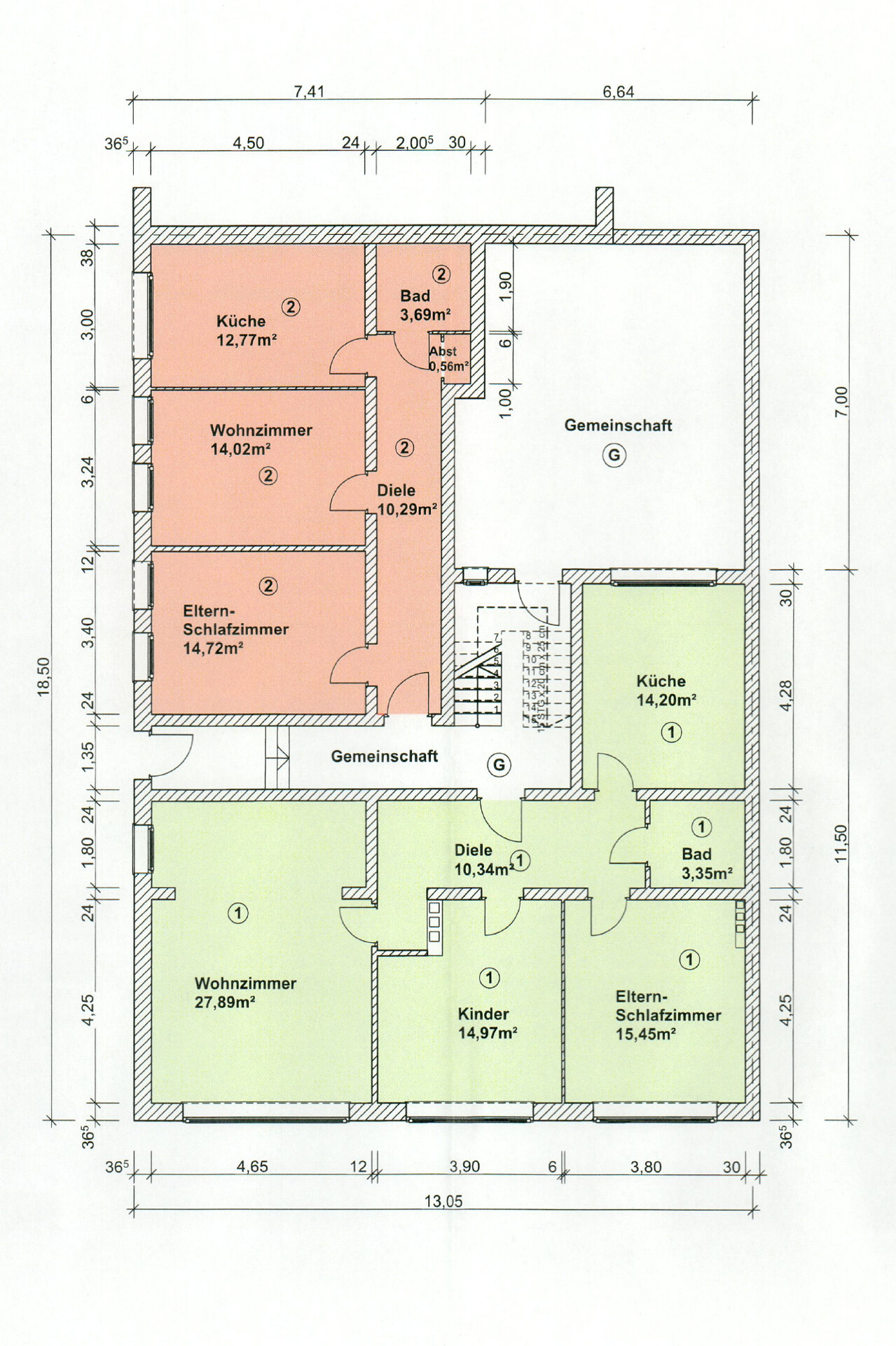
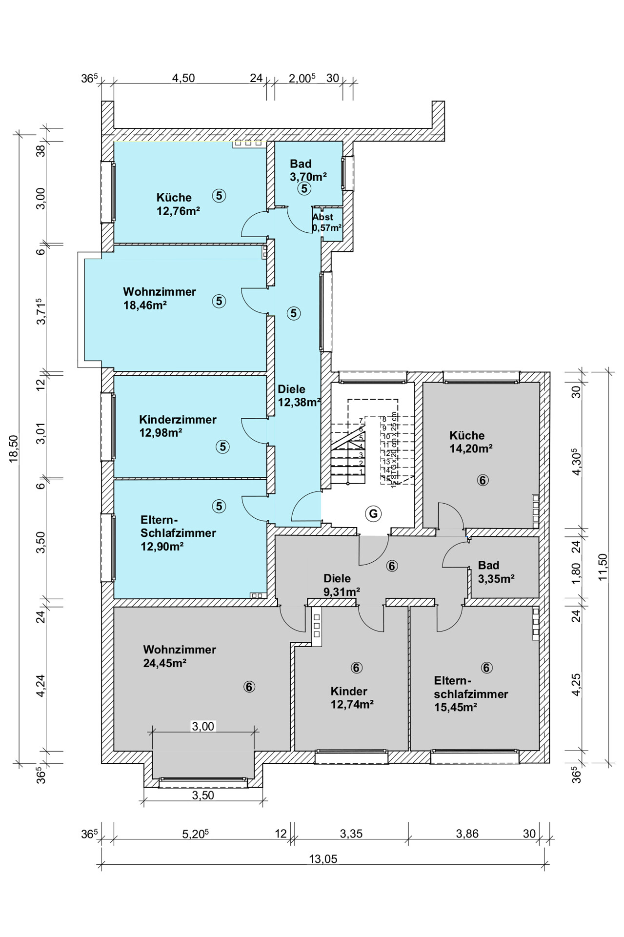
    Wohnungsaufteilung
    WE 1 – Erdgeschoss links: 86,20 m², 3 Zimmer
    WE 2 – Erdgeschoss rechts: 56,05 m², 2 Zimmer
    WE 3 – 1. Obergeschoss links: 79,50 m², 3 Zimmer
    WE 4 – 1. Obergeschoss rechts: 70,65 m², 3 Zimmer
    WE 5 – 2. Obergeschoss links: 73,75 m², 3 Zimmer
    WE 6 – 2. Obergeschoss rechts: 79,50 m², 3 Zimmer

    Ausstattungsmerkmale
    Holzfenster aus dem Baujahr
    Neue Etagenheizungen (2023–2024)
    Voll unterkellert
    Separates Kellerabteil für jede Wohneinheit

    Hinweis: Aus Rücksicht auf die Privatsphäre der Mieter wurden im Exposé aktuell nur zwei der insgesamt sechs Wohneinheiten fotografiert.

    • Art der Ausstattung: Standard
    • Heizungsart: Etagenheizung
    • Befeuerung: Gas
    • Energieausweis-Art: Verbrauch
    • Energieausweis gültig bis: 24.03.2035
    • Energieverbrauchskennwert: 134,60 kWh/(m²*a)
    • Energieeffizienzklasse: E
    • Baujahr (Energieausweis): 1960
    • Energieausweis-Jahrgang: ab Mai 2014
    • Energieausweis-Gebäudeart: Wohngebäude
    • Primärenergieträger: Gas
    A+
    A
    B
    C
    D
    E
    134,60 kWh/(m²·a)
    F
    G
    H
  • Die Stadt Jülich zeichnet sich durch eine ausgezeichnete infrastrukturelle Anbindung sowie eine stetig wachsende Wohnraumnachfrage aus. Von besonderer Bedeutung ist die unmittelbare Nähe zum Forschungszentrum Jülich, einem der größten Forschungsstandorte Europas mit internationaler Strahlkraft. Der kontinuierliche Ausbau des Zentrums sorgt für eine hohe und nachhaltige Nachfrage nach Wohnraum, insbesondere bei Fach- und Führungskräften.

    Das direkte Umfeld bietet eine sehr gute Nahversorgung mit Einkaufsmöglichkeiten, Schulen, Kitas und medizinischer Infrastruktur. Die Verkehrsanbindung ist sowohl über den öffentlichen Nahverkehr als auch über die Autobahnen A4 und A44 hervorragend gewährleistet, wodurch die Metropolregionen Köln, Düsseldorf und Aachen in kurzer Zeit erreichbar sind.

    Für Kapitalanleger bedeutet diese Lage eine außergewöhnlich hohe Vermietungssicherheit sowie stabile Erträge – getragen durch die starke Nachfrage und die hervorragende wirtschaftliche Entwicklung des Standorts. Langfristig eröffnet sich zudem ein hohes Wertsteigerungspotenzial, gestützt durch die Bedeutung des Forschungszentrums und die dynamische Entwicklung der Region.

    • Kaufpreis: 859.000 €
    • Käuferprovision: 3,57% inkl. MwSt.

Ihre Ansprechpartner

Mirijam Josellis
02242-9060940
     
Sicher!