Barrierefreies Büro zur Miete in Unna Massen
-
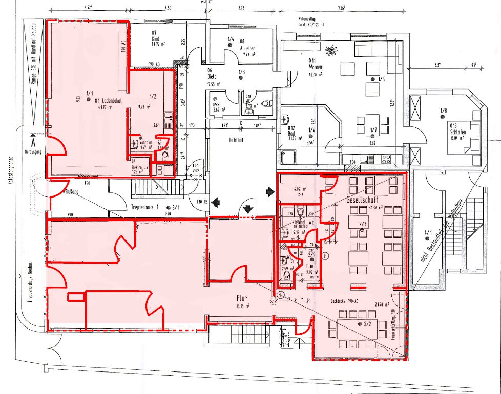
Willkommen in Ihrem neuen Bürotraum! Diese großzügige Gewerbeimmobilie bietet auf 158 qm alles, was Sie für ein erfolgreiches Arbeitsumfeld benötigen. Mit 4 lichtdurchfluteten Zimmern, darunter 3 separate Büroräume und ein einladender Empfangsbereich, schaffen Sie eine inspirierende Atmosphäre für Ihr Team und Ihre Kunden. Der große Flur sorgt für eine angenehme Raumaufteilung, während die separate Küche und der große Gemeinschaftsbereich den perfekten Ort für Pausen und Teambesprechungen bieten.
Die Barrierefreiheit wird durch eine praktische Rampe gewährleistet, und mit 2 WC-Anlagen sind Sie bestens ausgestattet. Zudem stehen Ihnen 4 Stellplätze zur Verfügung, was die Erreichbarkeit für Ihre Mitarbeiter und Besucher erleichtert. Diese Immobilie ist ab dem 01.01.2026 verfügbar und bietet Ihnen die Möglichkeit, die angrenzende Bürofläche von 58 qm dazu zu mieten, um noch mehr Raum für Ihre Ideen zu schaffen. Lassen Sie sich diese Chance nicht entgehen! -
Flächen
- Bürofläche: 158 m²
- Zimmer insgesamt: 4
- Stellplatzart: Freiplatz
- Außenstellplätze: 4
Zustand & Erschließung
- Baujahr: 1968
- Zustand: gepflegt
Sonstiges
- Immobilie ist verfügbar ab: 01.01.2026
-
- Befeuerung: Gas
-
- Energieausweis-Art: Verbrauch
- Energieausweis gültig bis: 08.12.2025
- Energieverbrauchskennwert: 142,38 kWh/(m²*a)
- Energieeffizienzklasse: E
- Energieausweis-Jahrgang: ab Mai 2014
- Energieausweis-Gebäudeart: Nichtwohngebäude
- Primärenergieträger: Gas
-
Unna Massen ist ein Vorort von Unna und liegt östlich von Dortmund, direkt im Knotenpunkt der Regionen Ruhrgebiet, Sauerland und Münsterland. Massen-Nord beherbergt die Landesstelle und die Buderuskolonie, in welcher die Wohnhäuser der ehemaligen Zeche Massen zu finden sind. Rund um den Hellweg finden Sie den Ortsteil Niedermassen mit gut bürgerlichen Wohnsiedlungen, vielen Geschäften und Einkaufsmöglichkeiten. Ein S-Bahnhof, sowie einige Bushaltestellen bieten eine gute Verkehrsanbindung. Auch Kindergärten, die Schillerschule und 2 Kirchen gehören zu Niedermassen. Der Teil Obermassen wird ebenfalls durch gute Wohnsiedlungen geprägt, die sich an beiden Seiten der Kleistraße ausbreiten. Im Süden von Massen finden Sie die Massener Heide mit großzügigen Einfamilien- und Landhäusern.
-
- Kaltmiete: 1.343 €
- monatl. Betriebs-/Nebenkosten: 220 €
- Kaution: 2.686 €
- Mieterprovision: 1.19 Monatsmieten
- Außenstellplatzmiete: 40 €
Grundrisse


















