Eigentumswohnung Erdgeschoss mit Balkon, Garage und Aufzug
-
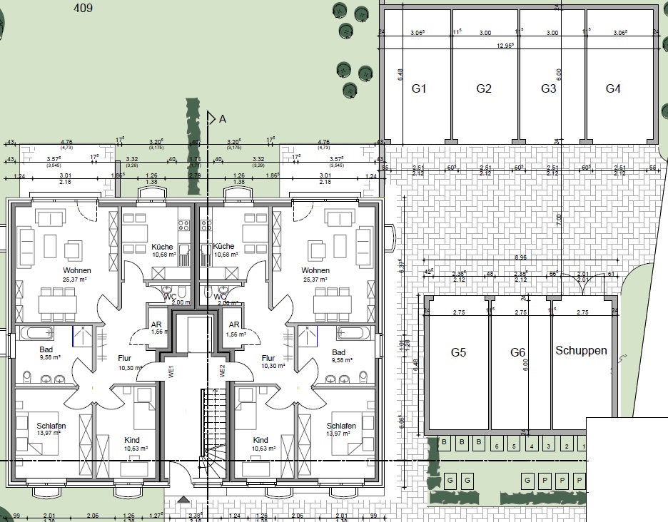
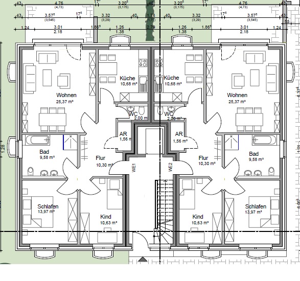
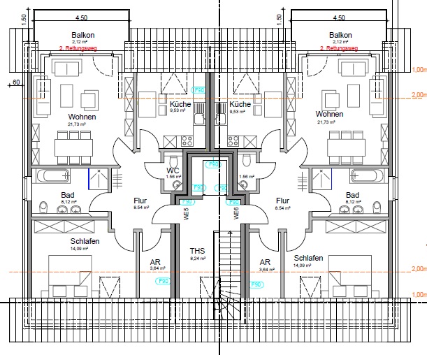
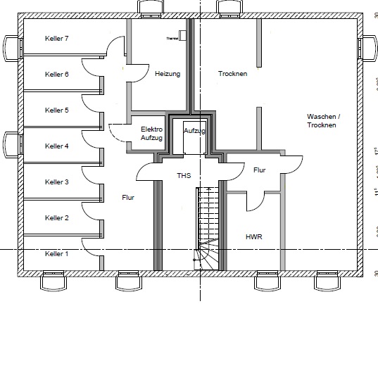
Gebaut wird hier ein 6 Familienhaus mit Vollkeller und 6 Garagen. Die zwei Wohnungen im EG sind mit je 84,10m², die beiden Wohnungen im ersten OG sind mit je ca. 85,79 m² Wohnfläche geplant. Die beiden Wohnungen im DG sind je mit ca. 67,21m² geplant. Alle Wohnungen sind derzeit mit drei Zimmern, Vollbad und Balkon bzw. Terrasse im EG geplant. Somit ergibt sich eine gute Vermarktungsmöglichkeit bei der Vermietung. Es wird ein Vollkeller errichtet in dem die Haustechnik eingebaut wird. Des Weiteren sind hier 6 Mieterkeller ein Wasch- und ein Trockenbereich für die Wäsche eingeplant. Das Gebäude wird über eine Luftwärmepumpe beheizt. Die Außenanlage wird als Grünanlage fertiggestellt.
-
Flächen
- Wohnfläche: 84,1 m²
- Grundstücksfläche: 992 m²
- Wohneinheiten: 1
- Zimmer insgesamt: 3
- Etagen: 2
- Stellplatzart: Garage
- Garagenstellplätze: 1
Zustand & Erschließung
- Baujahr: 2022
- Zustand: Erstbezug
- Alter: Neubau
Sonstiges
- Immobilie ist verfügbar ab: sofort
-
- Befeuerung: Gas
-
- Energieausweis-Jahrgang: nicht verfügbar
- Primärenergieträger: Gas
-
Heeren liegt im Südosten der Stadt Kamen, Werve ist der direkte Nachbarort und wird nur durch den Mühlbach von Heeren getrennt. Über Landesstraßen erreichen Sie die nahgelegenen Städte Kamen, Dortmund und Unna schnell und unkompliziert.
In Heeren-Werve sind die Grundschule, Sporteinrichtungen, Ärzte, Banken und Einkaufsmöglichkeiten nicht weit entfernt vorhanden.
In den Naturgebieten rund um die Seseke und den Mühlbach bieten sich Spaziergänge und Radtouren an. Früher waren beide Bäche mit Betonschalen ausgelegte Kanäle. Durch einen ökologischen Umbau haben beide Bäche einen Teil ihrer naturnahen Gestalt zurückbekommen.
Die frühbarocke Wasserschloss-Anlage Haus Heeren ist einer der letzten Vertreter der adeligen Häuser im Kreis Unna. Hier können Sie sogar standesamtlich heiraten. -
- Kaufpreis: 333.456 €
- Käuferprovision: 3.57 %
- Aktuelle Mieteinnahmen pro Jahr: 54.294 €
- Stellplatzkaufpreis (Garage): 12.000 €












