Einfamilienhaus in begehrter Wohnlage von Kettwig!
-
Das vollunterkellerte, freistehende Haus präsentiert sich auf einem großzügigen, 1.101 m² großen Grundstück in begehrter Südwestausrichtung und bietet vielfältige Nutzungsmöglichkeiten für Familien sowie Bauherren mit individuellen Gestaltungswünschen. Der liebevoll angelegte, kaum einsehbare Garten mit altem und wertvollem Pflanzenbestand schafft eine private und idyllische Rückzugsoase.
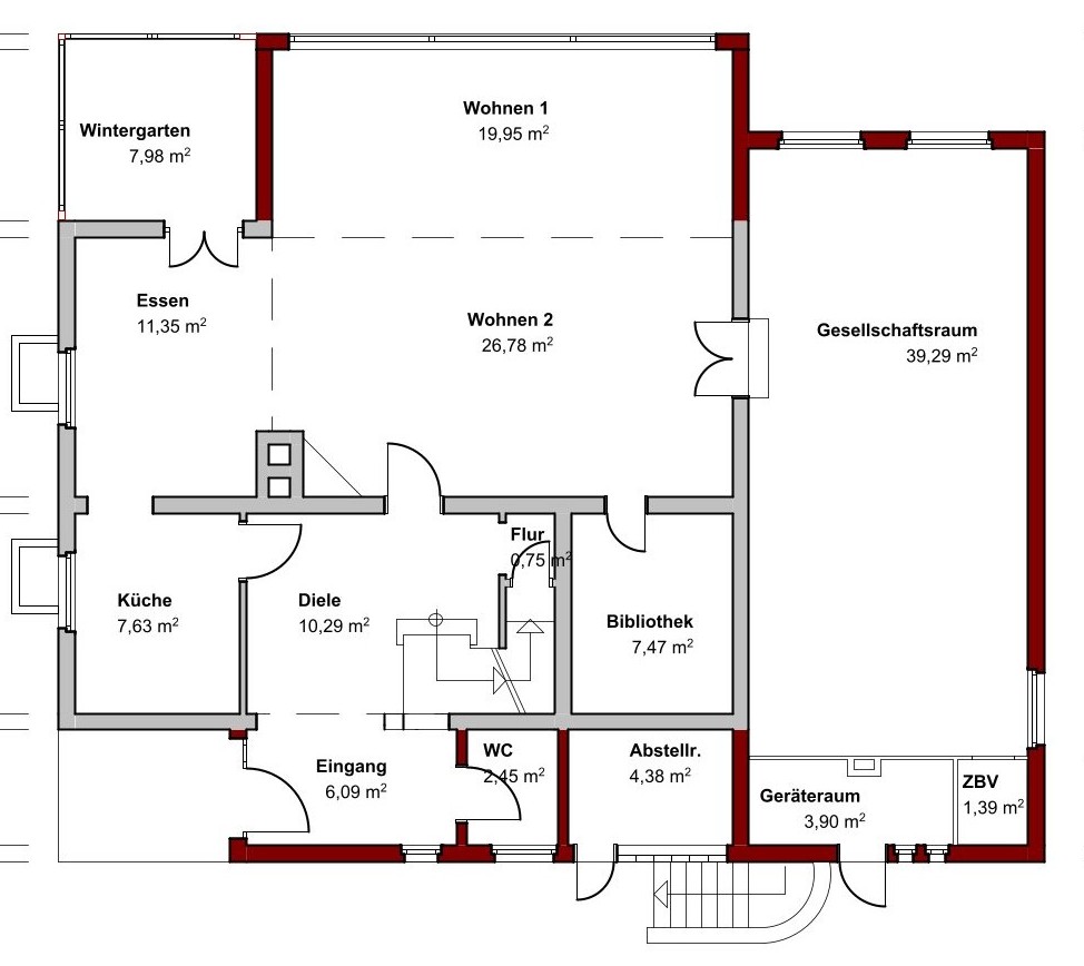
Im Erdgeschoss erwartet Sie ein großzügiger Wohn-/Essbereich, der durch seine offene Gestaltung besticht. Angrenzend befindet sich eine kleine Bibliothek, die Raum für Ruhe und Inspiration bietet. Der sonnige Wintergarten erweitert den Wohnbereich harmonisch und eröffnet einen wunderbaren Blick in den Garten. Die kleine Einbauküche und das Gäste-WC ergänzen das Raumangebot. Ein großes Nebenzimmer eröffnet zusätzliche Möglichkeiten: So könnte der Raum z.B. zu einem komfortablen Eltern-Schlafzimmer mit Ankleidebereich und Bad en Suite umgebaut werden.
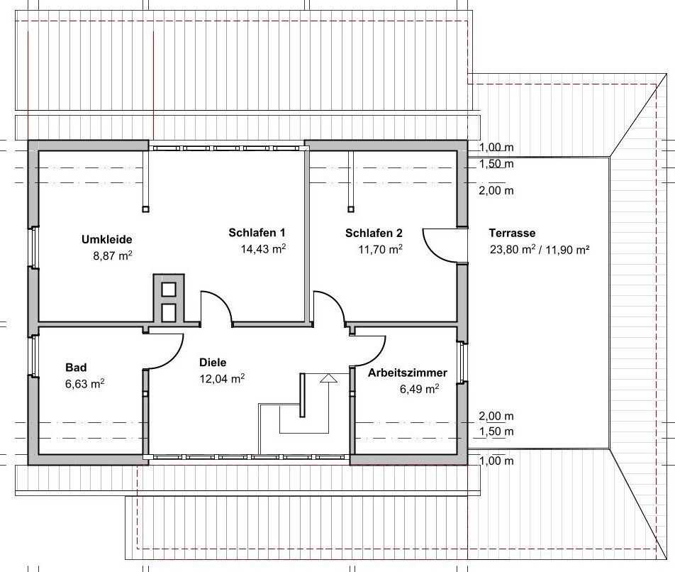
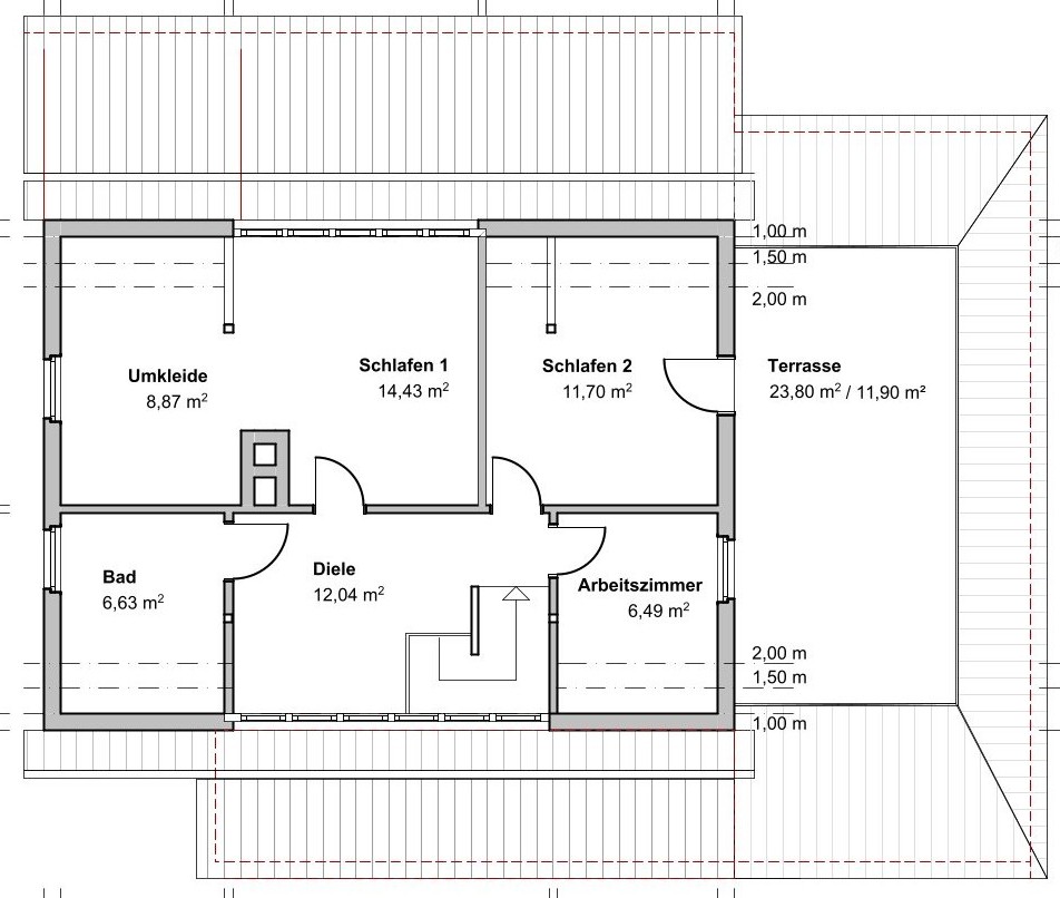
Das Dachgeschoss verfügt über ein Schlafzimmer mit angrenzendem Ankleidebereich, ein Kinderzimmer, ein Arbeitszimmer sowie ein hochwertiges Badezimmer. Besonders hervorzuheben ist die große Dachterrasse, von der Sie einen unverbaubaren Fernblick ins Grüne genießen können. Der teilweise ausgebaute Spitzboden sorgt für weiteren Gestaltungsspielraum.
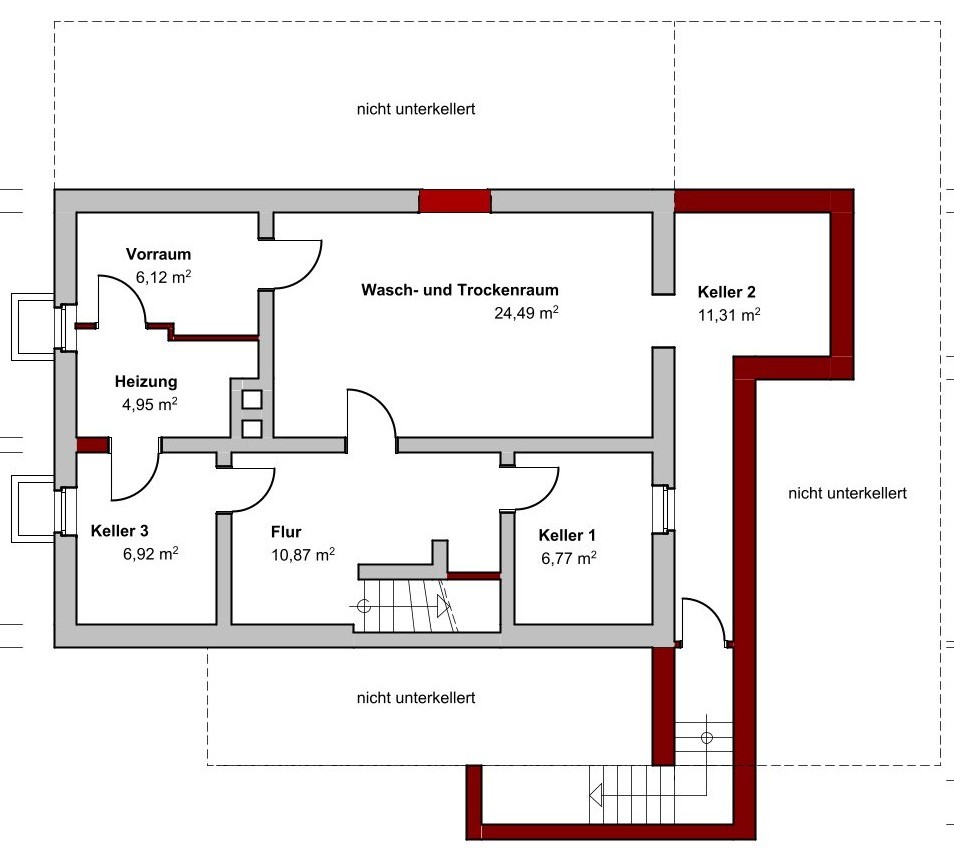
Das Kellergeschoss bietet viel Nutzfläche und Platz für eine Waschküche und Vorräte.
Fazit: Mit einigen Umbaumaßnahmen eignet sich dieses Haus ideal für eine Familie mit zwei bis drei Kindern. Alternativ besteht die Möglichkeit, das Gebäude zu erweitern oder einen vollständigen Neubau zu realisieren das großzügige Grundstück eröffnet vielfältige Entwicklungsperspektiven. -
Flächen
- Wohnfläche: 203,07 m²
- Grundstücksfläche: 1.001 m²
- Nutzfläche: 105,45 m²
- Zimmer insgesamt: 6
- Schlafzimmer: 3
- Badezimmer: 1
- Separate WCs: 1
- Etagen: 2
- Stellplatzart: Garage
- Garagenstellplätze: 1
Zustand & Erschließung
- Baujahr: 1954
- Zustand: gepflegt
- Keller: voll unterkellert
Sonstiges
Provision:
Für unsere Nachweis-/Vermittlungstätigkeit ist vom Käufer bei Abschluss eines wirksamen Kaufvertrages über die Immobilie eine Provision in Höhe von 3,57 % (inkl. 19 % Mehrwertsteuer) berechnet vom beurkundeten Gesamtkaufpreis zu zahlen. Wir weisen darauf hin, dass wir auch für den Verkäufer provisionspflichtig tätig sind.
Sonstiges:
Das Angebot ist nur für Sie bestimmt und streng vertraulich zu behandeln. Eine Weitergabe an Dritte ist ohne unsere Erlaubnis nicht gestattet und verpflichtet gegebenenfalls zu Schadenersatz. Die Information zu unseren Immobilienangeboten erhalten wir vom Eigentümer oder anderen Auskunftsbefugten. Diese Angaben geben wir ohne Übernahme einer Haftung für deren Richtigkeit an Kaufinteressenten weiter.- Immobilie ist verfügbar ab: sofort
-
Das 1954 erstellte Haus wurde in späteren Jahren durch die Eltern der Eigentümer erweitert und ausgebaut. Da wir hierzu in den Bauakten keine Genehmigungen finden konnten, müssten die Anbauten durch die neuen Eigentümer nachträglich genehmigt werden. Der Zustand des Hauses ist vor allem im Erdgeschoss und im Obergeschoss als gut zu bezeichnen. So erfolgten im Laufe der letzten 15 Jahre umfassende Renovierungs- und Modernisierungsarbeiten. Aufgrund von Feuchtigkeitsschäden besteht aktuell lediglich im Kellergeschoss Sanierungsbedarf.
Ausstattungsmerkmale:
– Gas-Zentralheizung mit Warmwasserversorgung (ca. 2016)
– Dachneueindeckung mit Wärmeisolierung (ca. 2019)
– überwiegend Kunststoff-Fenster mit Isolierverglasung (ca. 2009)
– Naturholztüren- und Türzargen
– Parkettboden im Erdgeschoss und im Obergeschos
– hochwertige Einbauküche (ca. 2016)
– modernes Badezimmer, ausgestattet mit Dusche, Waschtisch, WC und Bidet
– separates Gäste-WC, ausgestattet mit Waschtisch und WC
– zwei offene Kamine im Erdgeschoss
– diverse Einbauschränke- Heizungsart: Zentralheizung
- Befeuerung: Gas
- Bodenbelag: Parkett
- Badausstattung: Dusche, Fenster
-
- Energieausweis-Art: Bedarf
- Energieausweis gültig bis: 26.11.2035
- Endenergiebedarf: 333,83 kWh/(m²*a)
- Energieeffizienzklasse: H
- Baujahr (Energieausweis): 1954
- Energieausweis-Ausstellungsdatum: 27.11.2025
- Energieausweis-Jahrgang: ab Mai 2014
- Energieausweis-Gebäudeart: Wohngebäude
- Primärenergieträger: Gas
-
Das angebotene Einfamilienhaus befindet sich in einer besonders attraktiven und ruhigen Wohnlage im beliebten Stadtteil Kettwig im Südwesten von Essen. Die Immobilie liegt eingebettet in ein gewachsenes, grünes Wohnumfeld mit Ein- und Zweifamilienhäusern, das sich durch ein hohes Maß an Lebensqualität, Ruhe und Natur auszeichnet.
Kettwig selbst gilt als grüne Mikropole im Ruhrgebiet: Am Rande des Bergischen Landes gelegen, besticht der Stadtteil durch viel Grün, weitläufige Felder, Waldflächen und die unmittelbare Nähe zur Ruhr. Die historische Altstadt von Kettwig mit ihren verwinkelten Gassen und den charmanten Fachwerkhäusern ist fußläufig gut erreichbar. Trotz der ruhigen, naturnahen Umgebung profitieren die Bewohner von einer sehr guten Infrastruktur; es gibt ein breitgefächertes Angebot an Schulen, Sportstätten sowie Einkaufsmöglichkeiten, Geschäften, Boutiquen, Cafés und Restaurants. Verkehrstechnisch ist der Standort ebenfalls attraktiv: Die Anbindung an das überregionale Straßennetz ist durch die Nähe zur A 52 (Richtung Essen/Düsseldorf) gegeben. Darüber hinaus gibt es eine fußläufig erreichbare S-Bahn-Haltestelle.
Insgesamt bietet die Wohnlage eine ideale Kombination aus ruhigem und naturnahem Wohnen, historischer Atmosphäre und guter Infrastruktur ein besonders begehrter Wohnstandort für Familien und Menschen, die Wert auf Lebensqualität legen.
-
- Kaufpreis: 950.000 €
- Käuferprovision: 3.57 %
Grundrisse













































