Gewerbeimmobilie > Halle
Zu Vermieten

Lager- und Verkaufsfläche im Herzen Unnas

59423 Unna
8.500 €

68336-8006
1963
2.364 m²
9
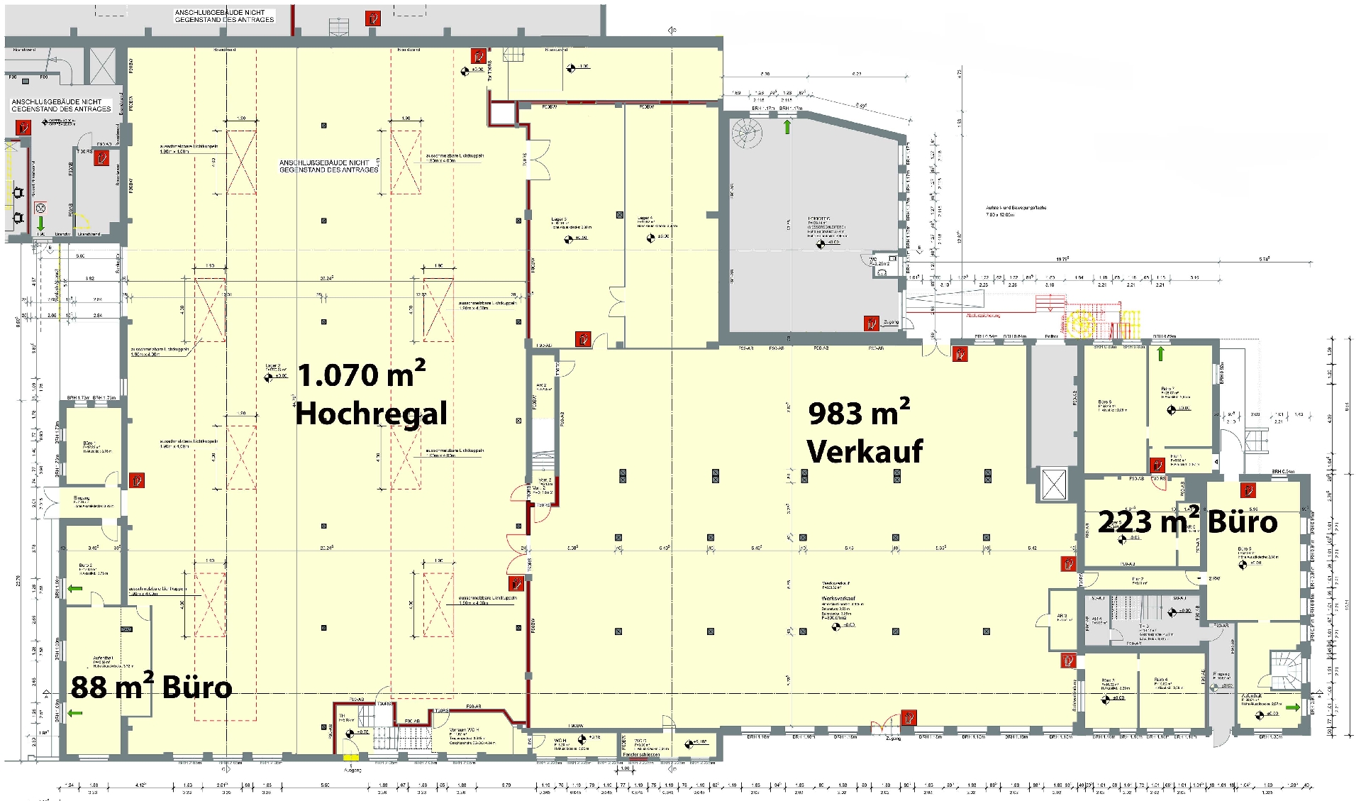
  • Das Objekt wird heute als Verwaltung, Lager und zum Verkauf von Gartenmöbeln genutzt. 1.000 m² der Fläche verfügen über eine Höhe von 5,30 – 6,00 Metern und können als Lager oder Produktionsfläche genutzt werden. Zugänglich ist diese Fläche über zwei Rolltore, sowie über die Lagerverwaltung. Diese verfügt über einen eigenen Eingang und erstreckt sich über ca. 88 m² moderne Bürofläche. Der zweite Gebäudeabschnitt hat ebenfalls ca. 1.000 m² Fläche. Diese ist mit ca. 3,50 m etwas niedriger und eignet sich perfekt für die Präsentation und Verkauf Ihrer Ware. Natürlich ist hier auch eine Produktion möglich. Dieser Bereich ist über eine Rampe sowie einen Eingang für Puplikumsverkehr erschlossen. Die anschließenden 233 m² Bürofläche runden das Gesamtangebot ab. Diese sind ebenfalls sehr modern und hell gestaltet und verfügen über heutige Technikstandards.
  • Flächen

    • Nutzfläche: 983 m²
    • Lagerfläche: 1.070 m²
    • Bürofläche: 311 m²
    • Gesamtfläche: 2.364 m²
    • Wohneinheiten: 12
    • Zimmer insgesamt: 9
    • Stellplätze: 20
    • Stellplatzart: Freiplatz
    • Außenstellplätze: 20

    Zustand & Erschließung

    • Baujahr: 1963
    • Zustand: gepflegt

    Sonstiges

    • Immobilie ist verfügbar ab: 01.05.2026
    • Heizungsart: Zentralheizung
    • Befeuerung: Gas
    • Rampe
    • Energieausweis-Art: Verbrauch
    • Energieausweis gültig bis: 08.10.2030
    • Stromverbrauchskennwert: 18 kWh/(m²*a)
    • Heizenergieverbrauchskennwert: 141 kWh/(m²*a)
    • Baujahr (Energieausweis): 1963
    • Energieausweis-Ausstellungsdatum: 08.10.2020
    • Energieausweis-Jahrgang: ab Mai 2014
    • Energieausweis-Gebäudeart: Nichtwohngebäude
    • Primärenergieträger: Gas
    Energieausweis nicht verfügbar/erforderlich oder in Vorbereitung
    A+
    A
    B
    C
    D
    E
    F
    G
    H
  • Das Gewerbeobjekt befindet sich auf dem ehemaligen Gelände des „Stahlwerk Unna“ an der Massener Straße/Am Büddenberg in Unna. Die Verkehrsanbindung ist als optimal einzustufen. In direkter Nachbarschaft liegt das Möbelhaus Zurbrüggen, der Baumarkt Globus, ein Rewemarkt sowie das Holzland Beese. Diese Nachbarn versprechen ein hohes Verkehrsaufkommen auch Ihrer zukunftigen Kunden. In nur wenigen Minuten gelangen Sie auf die B1 sowie auf die A1 und A2. Der öffentliche Personennahverkehr ist ebenfalls nur wenigen Gehminuten von der Immobilie entfernt. Parkplätze sind direkt an der Immobilie vorhanden.

    • Kaltmiete: 8.500 €
    • monatl. Betriebs-/Nebenkosten: 1.700 €
    • monatl. Heizkosten: 1.500 €
    • Preise zuzüglich Mehrwertsteuer: ja

Ihre Ansprechpartner

Mirijam Josellis
02242-9060940
     
Sicher!