Moderne Praxisfläche in einem florierenden Ärztehaus in der Duisdorfer Fußgängerzone - 167 m²
-
Diese attraktive Praxisfläche bietet auf 167 m² eine moderne und funktionale Ausstattung, die eine angenehme und professionelle Arbeitsatmosphäre schafft.
Die Immobilie eignet sich ideal für medizinische und heilberufliche Praxen/Betrieben. In unmittelbarer Nähe befinden sich bereits verschiedene medizinische Einrichtungen wie Apotheken, Augenärzte, Psychotherapeuten, Ergotherapeuten, Sanitätshäuser, Hörakustik-Studios, Anbieter für Beatmungstechnik und Kieferchirurgen. Diese hervorragende Nachbarschaft ermöglicht wertvolle Synergieeffekte. Zudem gibt es zahlreiche Zuweiser in der Umgebung.
Die Mietfläche befindet sich im 1. Obergeschoss eines gepflegten, sanierten 4-geschossigen Wohn- und Geschäftshauses und ist bequem sowohl über das Treppenhaus als auch den Aufzug erreichbar.
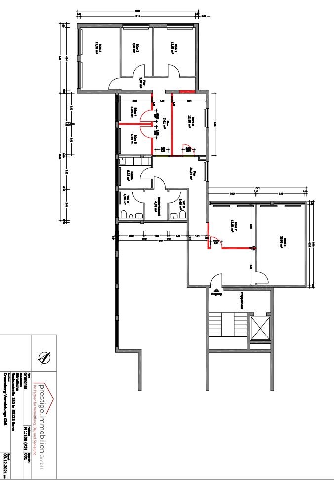
Die barrierefreie Praxisfläche ist derzeit in acht helle, gut geschnittene Räume unterteilt, die eine freundliche und einladende Atmosphäre für Patienten und Mitarbeiter bieten.
Durch die zentrale Lage in Duisdorf ist die Praxis sowohl mit öffentlichen Verkehrsmitteln als auch mit dem Auto ausgezeichnet erreichbar.
Mitarbeiter PKW-Stellplätze können in der Tiefgarage, im Innenhof und in der Außenanlage angemietet werden.
Bei Gewerbemieten beträgt die zu zahlende Mieterprovision bei Mietverträgen bis 5 Jahren Dauer 2 Nettokaltmieten zuzüglich der gesetzlichen Mehrwertsteuer von zurzeit 19 %, mithin insgesamt 2,38 Kaltmieten. Bei Mietverträgen ab 5 Jahren Dauer sind 3 Nettokaltmieten zuzüglich der gesetzlichen Mehrwertsteuer von zurzeit 19 %, mithin insgesamt 3,57 Kaltmieten zu zahlen. Optionsrechte zur Verlängerung des Mietvertrages werden hinsichtlich der Provision auf die Dauer angerechnet.
Die zu zahlende Mieterprovision wird auf der Grundlage des Mietvertrages inkl. den vom Mieter übernommenen Nebenflächen, Zubehör, Garagen, Stellplätzen, Sondernutzungsrechten und sonstigen Leistungen berechnet.
Der Provisionsanspruch entsteht mit Abschluss des Mietvertrages und ist bei dessen Wirksamkeit zur Zahlung durch den Mieter fällig. Die Maklerprovision steht der Firma BONACCURA auch dann zu, wenn ein wirtschaftlich gleichartiges oder ähnliches Objekt angemietet, erworben oder ein anderes Geschäft mit der Firma BONACCURA zustande kommt, wenn sich das Objekt im Angebot der Firma BONACCURA befindet. -
Flächen
- Nutzfläche: 167 m²
- Bürofläche: 167 m²
- Gesamtfläche: 167 m²
- Zimmer insgesamt: 8
- Etagen: 4
- Etage: 1
- Garagenstellplätze: 5
Zustand & Erschließung
- Baujahr: 1980
- Zustand: nach Vereinbarung
Sonstiges
Energieausweis: Bedarfsausweis gültig von: 09.09.2024
Endenergiebedarf Wärme: 74.5 kWh/(m²a) Endenergiebedarf Strom: 11.9 kWh/(m²a) Wesentliche Energieträger Heizung: Befeuerung Gas
Baujahr: 1980- Immobilie ist verfügbar ab: 01.01.2026
-
– 2017 Generalsaniertes und gedämmtes Objekt
– Aufzug
– neue Gas-Zentralheizungen
– Tiefgarage und weitere Außenstellflächen
– Außenliegender Sonnenschutz
– Isolierverglaste Fenster mit Kunststoffrahmen
– Bodenbelag in modernem in Vinyl
– Hausmeisterservice- Heizungsart: Zentralheizung
- Befeuerung: Gas
-
- Energieausweis-Art: Bedarf
- Energieausweis gültig bis: 08.09.2034
- Stromverbrauchskennwert: 11,90 kWh/(m²*a)
- Heizenergieverbrauchskennwert: 74,50 kWh/(m²*a)
- Energieeffizienzklasse: -
- Baujahr (Energieausweis): 1980
- Energieausweis-Ausstellungsdatum: 09.09.2024
- Energieausweis-Jahrgang: ab Mai 2014
- Energieausweis-Gebäudeart: Nichtwohngebäude
- Primärenergieträger: Gas
-
Die begehrte Zentrumslage in Bonn-Duisdorf im Westen der Stadt bietet eine exzellente Anbindung und eine hervorragende Infrastruktur. Angrenzende Stadtteile wie Brüser Berg, Lengsdorf, Endenich, Lessenich/Meßdorf und Alfter ergänzen das dynamische Umfeld. Besonders die Duisdorfer Fußgängerzone ist ein beliebter Treffpunkt für viele Bonner und nach wie vor ein zentraler Anlaufpunkt für die Mitarbeiter der umliegenden Ministerien und Behörden.
Der Ortskern hat sich zu einem lebendigen und leistungsfähigen Zentrum entwickelt, das mit seiner Fußgängerzone (B-Zentrum) eine ausgezeichnete Auswahl an Einkaufsmöglichkeiten bietet. Hier finden die Bewohner eine breite Palette an Supermärkten, Boutiquen und Geschäften des täglichen Bedarfs sowie gemütliche Cafés, Eisdielen und ausgesuchte Restaurants. Der Branchenmix ist vielfältig und zeichnet sich durch zahlreiche, kleine, inhabergeführte Betriebe und Handwerksgeschäfte aus.
Zu den weiteren Vorzügen der Lage gehören die fußläufig erreichbaren Ärzte, Fachärzte, Kindergärten, Schulen aller Altersstufen sowie Spielplätze, Banken und kulturelle Einrichtungen wie Theater. Auch Sport- und Freizeitmöglichkeiten befinden sich in unmittelbarer Nähe. Die hohe Frequenz von Nachbargewerben trägt zur Belebung des Umgebungsbereichs bei.
Für Belieferung und Abholung stehen die Nebenstraßen zur Verfügung, die keine zeitlichen Einschränkungen der Fußgängerzone unterliegen.
Die Verkehrsanbindung ist exzellent. Der öffentliche Personennahverkehr sorgt für eine gute Mobilität zu jeder Tageszeit, mit Nachtbuslinien, die auch zu später Stunde eine bequeme Anbindung bieten. Der Duisdorfer Bahnhof sowie der Haltepunkt Helmholzstraße sind in weniger als 10 Minuten zu Fuß erreichbar. Mit der Regionalbahn (RB23) gelangt man in nur 6 Minuten zum Bonner Hauptbahnhof, von wo aus Anschlüsse nach Köln, Düsseldorf und Koblenz bestehen. Auch Ziele wie Alfter, Bornheim und Rheinbach sind schnell mit Bus oder Bahn zu erreichen. Die A 565 ist über den nahegelegenen Konrad-Adenauer-Damm in nur 5 Minuten erreichbar und bietet zahlreiche Anschlussmöglichkeiten, unter anderem zur A 555 nach Köln, zur A 59 zum Flughafen Köln/Bonn (ca. 15 Minuten Fahrtzeit) und zur A 61 (ebenfalls nur ca. 15 Minuten Fahrtzeit).
-
- Kaltmiete: 1.790 €
- monatl. Betriebs-/Nebenkosten: 300 €
- monatl. Heizkosten: 250 €
- Kaution: 4.000 €
- Mieterprovision: 2.38 MM
- Stellplatzmiete (Garage): 50 €
Grundrisse
























