Wohnimmobilie > Doppelhaushälfte
Zu Verkaufen

Modernisierte Doppelhaushälfte in Bonn-Röttgen

53125 Bonn / Röttgen
715.000 €

66275-8588
1983
151 m²
324 m²
6
  • Eine erstklassig modernisierte Doppelhaushälfte, die keine Wünsche offenlässt. Ursprünglich im Jahr 1983 erbaut, wurde das Haus 2018 umfassend energetisch saniert und optisch auf einen zeitgemäßen Standard gehoben. Die Arbeiten umfassten eine aufwendige Fassadendämmung (ca. 16 cm) sowie eine Kellerdeckendämmung (ca. 8 cm), die für eine hervorragende Energieeffizienz sorgen.

    Das Objekt ist aktuell seit 2020 vermietet. Im Inneren erwarten Sie modernisierte Badezimmer inklusive Gäste-WC, hochwertige Vinyl-Bodenbeläge in den Schlafräumen und ein aufgearbeitetes Mosaikparkett im Wohn- und Essbereich, das durch seine Helligkeit und Gemütlichkeit besticht. Die Küche überzeugt mit neuen, stilvollen Fliesen und ist sowohl über den Flur als auch direkt vom Wohnbereich erreichbar. Große Fensterfronten mit Wärmeschutzverglasung und elektrischen Rollläden bieten eine freundliche Wohnatmosphäre und optimalen Komfort.

    Im ersten Obergeschoss erwarten Sie vier schrägenfreie Schlafzimmer und zwei moderne Tageslichtbäder – ideal für Familien oder die Kombination aus Wohnen und Arbeiten. Der ausgebaute Dachbereich bietet zudem einen perfekten Rückzugsort oder ein geräumiges Elternschlafzimmer. In den Ursprungsplänen war im Dachgeschoß ein weiteres Badezimmer geplant.
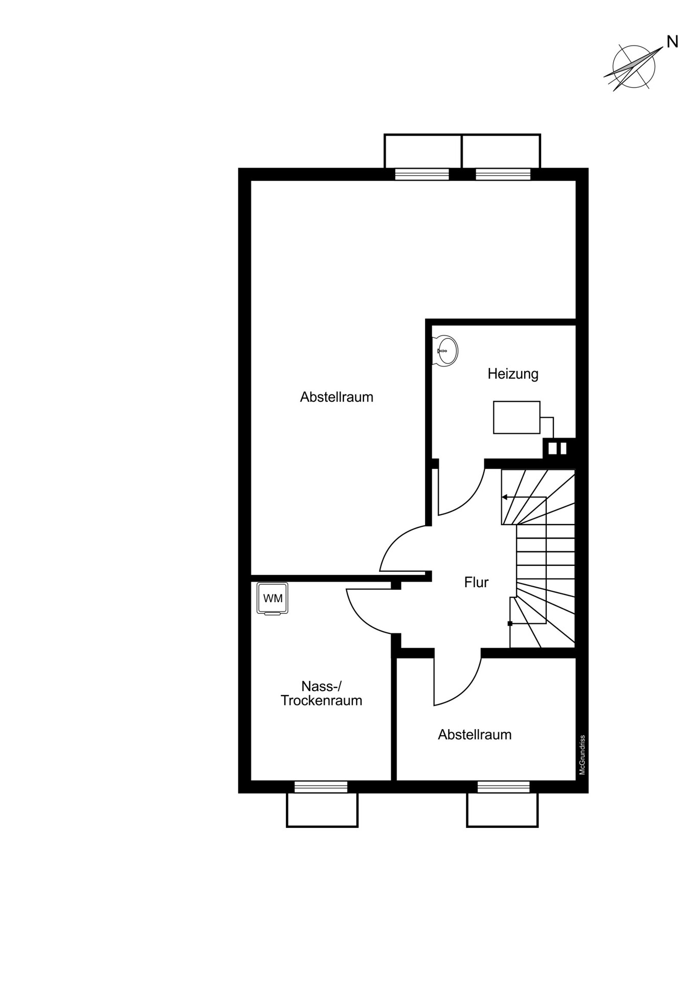
    Der Keller punktet mit einer Waschküche, einem Heizungsraum und reichlich Stauraum. Ein großzügiger Hobby- oder Mehrzweckraum mit Fenstern erweitert Ihre Nutzungsmöglichkeiten. Das Haus ist mit einer Gas-Zentralheizung aus dem Jahr 2003 und einem Warmwasserspeicher ausgestattet.
    Der umgestaltete Vorgarten mit Pflastersteinen und das neue Sektionaltor der Garage runden den beeindruckenden Gesamteindruck ab. Beachten Sie, dass die Immobilie derzeit noch vermietet ist. Bereit für Ihr neues Zuhause? Entdecken Sie heute, was diese exklusive Immobilie für Sie bereithält!
    Die Möblierung wurde auf Wunsch der Mieter ausgetauscht. Die allgemeine Ausstattung, wie z. B. die Böden, wurde nicht verändert.
  • Flächen

    • Wohnfläche: 151 m²
    • Grundstücksfläche: 324 m²
    • Nutzfläche: 60 m²
    • Zimmer insgesamt: 6
    • Schlafzimmer: 5
    • Badezimmer: 2
    • Separate WCs: 1
    • Etagen: 2
    • Außenstellplätze: 1
    • Garagenstellplätze: 1
    • Terrassen: 1

    Zustand & Erschließung

    • Baujahr: 1983
    • Dachform: Satteldach
    • Keller: voll unterkellert

    Sonstiges

    • Immobilie ist verfügbar ab: nach Vereinbarung
    • zurzeit vermietet: ja
  • – umfangreiche Modernisierung in 2018

    – Einbauküche verbleibt im Objekt

    – ein offener Kamin

    – Fenster mit Wärmeschutzverglasung und elektrischen Rollläden

    – teilweise Echtholz-Parkett

    – das Haus ist vollständig unterkellert

    – schöner Gartenbereich mit zusätzlichem Zugang neben der Garage

    – 2 Bäder plus Gäste-WC

    – Garage mit erneuertem Garagentor

    • Art der Ausstattung: gehoben
    • Heizungsart: Zentralheizung
    • Befeuerung: Gas
    • Gäste-WC
    • Kamin
    • Energieausweis-Art: Bedarf
    • Energieausweis gültig bis: 15.01.2030
    • Endenergiebedarf: 118,70 kWh/(m²*a)
    • Energieeffizienzklasse: D
    • Baujahr (Energieausweis): 1983
    • Energieausweis-Jahrgang: ab Mai 2014
    • Energieausweis-Gebäudeart: Wohngebäude
    • Primärenergieträger: Gas
    A+
    A
    B
    C
    D
    118,70 kWh/(m²·a)
    E
    F
    G
    H
  • Diese attraktive Doppelhaushälfte befindet sich in einer begehrten Wohnlage im Bonner Stadtteil Röttgen, einem beliebten Wohngebiet am westlichen Stadtrand von Bonn. Die Umgebung besticht durch gepflegte Wohnbebauung, viel Grün und eine angenehme Nachbarschaft, die ein harmonisches Wohnumfeld schaffen.

    Röttgen überzeugt mit einer hervorragenden Infrastruktur: In unmittelbarer Nähe finden Sie vielfältige Einkaufsmöglichkeiten für den täglichen Bedarf, Schulen, Kindergärten sowie umfassende medizinische Versorgung. Die Nähe zum malerischen Kottenforst bietet zudem einen hohen Freizeit- und Erholungswert, ideal für ausgedehnte Spaziergänge und Radtouren.

    Dank der ausgezeichneten Anbindung an die Bonner Innenstadt sowie an umliegende Städte profitieren Sie von kurzen Wegen. Die naheliegende Autobahn und gut ausgebaute Verkehrsverbindungen machen den Standort attraktiv für Pendler und Familien, die ein ruhiges Wohnen im Grünen schätzen, ohne auf die Vorzüge der Großstadtnähe verzichten zu müssen.

    • Kaufpreis: 715.000 €
    • Käuferprovision: 3,57 % inkl. MwSt.

Ihre Ansprechpartner

Mirijam Josellis
02242-9060940
     
Sicher!