Produktionsfläche / Lagerhalle mit guter Verkehrsanbindung
-
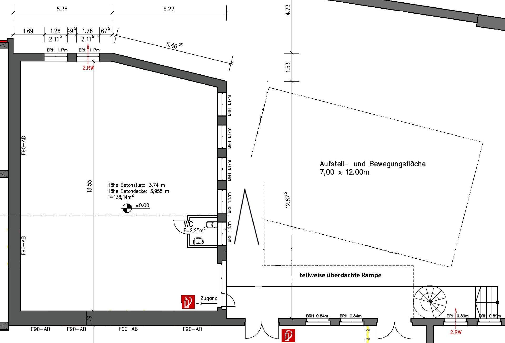
Es empfängt Sie eine Gewerbehalle aus den 60iger Jahren. Die Backsteinhalle wurde durch den Eigentümer neu aufgeteilt und saniert. Die Hallengröße beträgt 138 m² und verfügt über ein separates WC. Die Halle/Werkstatt ist ebenerdig und verfügt über eine Tür mit Doppelflügel und hat eine Innenhöhe von 3,75 – 3,95 Metern. Die Anlieferung von Waren läuft die vorgebaute Rampe. Hier können Sie mit einem 7,5tonner rückwärts ran fahren, oder die Ware mit einer Ameise über die Rampe in die Mietfläche laden. Die Gewerbefläche wird über Radiatoren beheizt. Starkstromanschlüsse sind in Hülle und Fülle vorhanden. Die Mietfläche ist komplett unterkellert. Diese Fläche kann kostenlos genutzt werden.
-
Flächen
- Nutzfläche: 138 m²
- Sonstige Fläche: 138 m²
- Gesamtfläche: 138 m²
- Außenstellplätze: 1
Zustand & Erschließung
- Baujahr: 1963
- Zustand: gepflegt
Sonstiges
- Immobilie ist verfügbar ab: 01.04.2025
-
- Heizungsart: Zentralheizung
- Befeuerung: Gas
-
- Energieausweis-Art: Bedarf
- Energieausweis gültig bis: 08.10.2030
- Stromverbrauchskennwert: 18 kWh/(m²*a)
- Heizenergieverbrauchskennwert: 141 kWh/(m²*a)
- Baujahr (Energieausweis): 1963
- Energieausweis-Ausstellungsdatum: 07.10.2020
- Energieausweis-Jahrgang: ab Mai 2014
- Energieausweis-Gebäudeart: Nichtwohngebäude
- Primärenergieträger: Gas
-
Die Gewerbehalle befindet sich auf dem ehemaligen Gelände des „Stahlwerk Unna“ an der Massener Straße/Am Büddenberg in Unna. Die Verkehrsanbindung ist als optimal einzustufen. Sie sind in nur wenigen Minuten auf der B1 sowie auf der A1 und A2. Der öffentliche Personennahverkehr ist ebenfalls nur wenigen Gehminuten von der Immobilie entfernt. Parkplätze sind direkt an der Immobilie vorhanden.
-
- Kaltmiete: 690 €
- monatl. Betriebs-/Nebenkosten: 115 €
- monatl. Heizkosten: 115 €
- Kaution: 1.380 €
Grundrisse














