*PROVISIONSFREI* ca. 141,60 m² Büro-/ Praxisfläche zu vermieten!
-
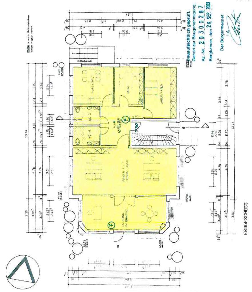
Büro-/ Praxisfläche: ca.141,60 m² Nutzfläche
Empfang, Büro/ Besprechung, 2 Büroräume, Küche
Frei ab: nach Absprache
Miete: EUR 1.500,– mtl. zzgl. Nebenkosten und MwSt.
Stellplätze: EUR 30,– mtl. zzgl. MwSt., mehrere möglich
Energieausweis: In Vorbereitung! -
Flächen
- Nutzfläche: 141,6 m²
- Bürofläche: 141,6 m²
- Gesamtfläche: 141,6 m²
Sonstiges
- Immobilie ist verfügbar ab: nach Absprache
-
Repräsentative, freistehende Immobilie, helle und modern ausgestattete Räume, großzügiger Empfang, Großraumbüro (gesamt auch als Ausstellungsfläche nutzbar), Granitfußbodenoberbelag, elektrische Rollläden mit Zeitschaltuhr, fußbodentiefe Fensterelemente, separate Büroräume mit Fliesenoberbelag, Damen und Herren WC jeweils mit Dusche und Tageslicht, Küche, Klimaanlage teilweise vorhanden, Übernahme vorhandener Büromöbel möglich, Gaszentralheizung.
- Heizungsart: Zentralheizung
- Befeuerung: Gas
- Bodenbelag: Stein, Granit
-
- Primärenergieträger: Gas
-
Die Büro-/ Praxisflächen befinden sich im gewerblich geprägten Ortsteil Bergkamen-Weddighofen mit bester Sichtbarkeit. In unmittelbarer Nähe befinden sich Gewerbetreibende, Arztpraxen, Kanzleien und weitere Dienstleister. Sehr gute Anbindung an den öffentlichen Nahverkehr Bushaltestelle ca. 3 Gehminuten entfernt mit den Linien 122, 126, 127, R12, sowie die A1 und A2 sind schnell erreichbar. Die Innenstadt von Bergkamen ist in ca. 5 Minuten mit dem Auto erreichbar, ideal für Mitarbeiter und Kundschaft.
-
- Kaltmiete: 1.500 €
- Preise zuzüglich Mehrwertsteuer: ja
Grundrisse














